
5 Beds
6 Baths
3,750 SqFt
5 Beds
6 Baths
3,750 SqFt
Key Details
Property Type Single Family Home
Sub Type Single Family Residence
Listing Status Pending
Purchase Type For Sale
Square Footage 3,750 sqft
Price per Sqft $345
Subdivision Black Creek Chattanooga
MLS Listing ID 1502656
Style Other
Bedrooms 5
Full Baths 4
Half Baths 2
HOA Fees $140/mo
Year Built 2025
Lot Size 0.440 Acres
Acres 0.44
Lot Dimensions ~115 x 160 IRR
Property Sub-Type Single Family Residence
Source Greater Chattanooga REALTORS®
Property Description
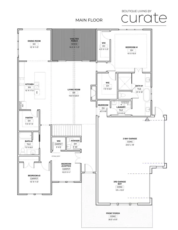
With THREE BEDROOMS ON THE MAIN LEVEL, The Laurel is the perfect home to enjoy low-maintenance, resort-style living in Black Creek! The open concept floorplan features 5 beds, 4 & two half baths + BONUS ROOM, OFFICE, optional second office, and THIRD GARAGE BAY. The spacious primary suite is located on the MAIN LEVEL with triple windows facing the private wooded rear allowing natural light to pour in! The luxurious en-suite bathroom is complete w/a free-standing soaking tub, double vanities, and full tile shower! The gourmet kitchen is a Chef's dream with it's elegant, yet timeless design featuring stone countertops, walk-in pantry, and oversized island! Vaulted ceiling in livingroom creates a light and bright space to enjoy entertaining. LARGE, SLIDING GLASS DOORS W/WINDOWS ABOVE open the living room to the covered deck. Enjoy your morning coffee surrounded by the beauty of Aetna Mountain!
**Visit Curate's Model Home at 423 Sun Valley to learn more about Curate's many options to build your Dream Home in Black Creek. Open Wednesdays through Sundays.
**Galena Cr is located in the first phase of The Pass at Black Creek. Additional planned club amenities on The Pass include Village center with community-serving businesses, lodging &event venue, dining options, city fire station &emergency services, health &fitness facility, walking, hiking, & biking trails, parks &greenspaces, outdoor activities, pools, lakes and more! Black Creek is vibrant resort-style community. There are miles of community maintained trails, two ponds and sidewalks throughout the neighborhood. The HOA hosts events for residents throughout the year. Other options to keep you connected include various community groups and gatherings. Membership to the club is optional and provides many additional amenities such as golf, pickleball, tennis, pools, & restaurant
Location
State TN
County Hamilton
Area 0.44
Rooms
Basement Partially Finished
Interior
Interior Features Beamed Ceilings, Ceiling Fan(s), Crown Molding, Double Closets, Double Vanity, Eat-in Kitchen, En Suite, Granite Counters, High Ceilings, Kitchen Island, Low Flow Plumbing Fixtures, Open Floorplan, Pantry, Primary Downstairs, Separate Dining Room, Separate Shower, Soaking Tub, Split Bedrooms, Storage, Tray Ceiling(s), Tub/shower Combo, Vaulted Ceiling(s), Walk-In Closet(s)
Heating Central, Electric, Heat Pump
Cooling Central Air, Electric, Multi Units
Flooring Carpet, Tile
Fireplaces Number 1
Fireplaces Type Gas Log, Living Room
Equipment Irrigation Equipment
Fireplace Yes
Window Features Insulated Windows,Low-Emissivity Windows,Vinyl Frames
Appliance Tankless Water Heater, Stainless Steel Appliance(s), Range Hood, Microwave, Gas Water Heater, Free-Standing Gas Range, Disposal, Dishwasher
Heat Source Central, Electric, Heat Pump
Laundry Electric Dryer Hookup, Inside, Laundry Room, Lower Level, Main Level, Multiple Locations, Washer Hookup
Exterior
Exterior Feature Storage
Parking Features Concrete, Driveway, Garage Faces Side, Kitchen Level, Off Street
Garage Spaces 3.0
Garage Description Attached, Concrete, Driveway, Garage Faces Side, Kitchen Level, Off Street
Pool Community
Community Features Clubhouse, Golf, Playground, Sidewalks, Tennis Court(s), Pond
Utilities Available Cable Available, Electricity Connected, Natural Gas Connected, Phone Available, Sewer Connected, Water Connected, Underground Utilities
Amenities Available Clubhouse, Dog Park, Fitness Center, Golf Course, Management, Park, Party Room, Picnic Area, Playground, Pond Year Round, Pool, Tennis Court(s), Trail(s)
Roof Type Asphalt,Shingle
Porch Covered, Deck, Porch, Porch - Covered, Rear Porch, Wrap Around
Total Parking Spaces 3
Garage Yes
Building
Lot Description Irregular Lot, Native Plants, Sloped, Sprinklers In Front, Wooded
Faces I-24 West from downtown Chatt. to Exit 174, left at end of ramp, right on Birmingham Hwy, right on Cummings Rd., left on River Gorge. Go straight up the hill and through the round-a-bout, taking the 2nd exit to stay on River Gorge. Continue on River Gorge up to the top of the mountain, turn left, take your second right onto Amethyst Rd. Turn left on Galena Circle. Home will be on the left. Site 833.
Story Two
Foundation Block, Concrete Perimeter
Sewer Holding Tank, Public Sewer
Water Public
Architectural Style Other
Additional Building None
Structure Type Brick,Fiber Cement,HardiPlank Type,Stone
Schools
Elementary Schools Lookout Valley Elementary
Middle Schools Lookout Valley Middle
High Schools Lookout Valley High
Others
HOA Fee Include Security
Senior Community No
Tax ID 165b A 013
Security Features Carbon Monoxide Detector(s),Smoke Detector(s)
Acceptable Financing Cash, Conventional, FHA, VA Loan
Listing Terms Cash, Conventional, FHA, VA Loan

GET MORE INFORMATION

REALTOR® | Lic# 309710